-
4
-
2
-
2
31 Silky Oak Drive, Caves Beach NSW 2281
Inside and out - this is the ONE!
Loved for its private and secluded feel, yet incredible proximity to services, shops and the surf Silky Oak Drive is one of Caves Beach's most desirable locales. Surrounded by lush greenery and enjoying elevated outlooks; it's easy to see yourself calling this pocket of paradise home.
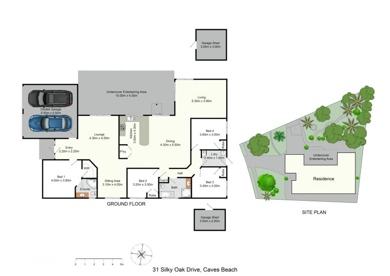
Embodying all this is 31 Silky Oak Drive. A spacious and incredibly functional family home with so much on offer! Occupying a large 886 square metre block on the high-side of the road, you'll enjoy elevated privacy creating the perfect coastal oasis. The property is wrapped in established gardens and grounds; easily enjoyed from the range of outdoor sitting and entertainment options.
Inside, the home features four great-sized bedrooms, all with built-ins; with the master suite featuring a large walk-in rode and ensuite. The heart of the home is where you will find the kitchen; directly adjoining the dining and large alfresco and flowing into one of two large family living spaces - the perfect hub for any family. With such a plethora of features already, it is easy to see how you can add additional value and flair to this home, to truly suit your style.
Feature Highlights
- A large, leafy block in one of Caves Beach's most tightly held addresses
- Spacious and bright family home, with great living flexibility
- Master suite with ensuite and walk-in robe
- An additional three bedrooms, all with built-ins
- Both formal and informal living spaces
- Massive covered alfresco, wrapped in lush greenery
- Great provisions for off-street parking as well thanks to its setback from the street
- Beautifully planned, established gardens that are packed with wow factor!
Well-loved and maintained throughout its time, this home is ready for a new generation to move in and make memories - we can't wait to show you through.
Council Rates currently $579.70 per quarter
_____________________
Marketing disclaimer: Whilst every care has been taken in collecting and producing the above information, no warranty is given or implied as to the accuracy. Prospective purchasers are required to take such actions as necessary to satisfy themselves in this respect.
Embodying all this is 31 Silky Oak Drive. A spacious and incredibly functional family home with so much on offer! Occupying a large 886 square metre block on the high-side of the road, you'll enjoy elevated privacy creating the perfect coastal oasis. The property is wrapped in established gardens and grounds; easily enjoyed from the range of outdoor sitting and entertainment options.
Inside, the home features four great-sized bedrooms, all with built-ins; with the master suite featuring a large walk-in rode and ensuite. The heart of the home is where you will find the kitchen; directly adjoining the dining and large alfresco and flowing into one of two large family living spaces - the perfect hub for any family. With such a plethora of features already, it is easy to see how you can add additional value and flair to this home, to truly suit your style.
Feature Highlights
- A large, leafy block in one of Caves Beach's most tightly held addresses
- Spacious and bright family home, with great living flexibility
- Master suite with ensuite and walk-in robe
- An additional three bedrooms, all with built-ins
- Both formal and informal living spaces
- Massive covered alfresco, wrapped in lush greenery
- Great provisions for off-street parking as well thanks to its setback from the street
- Beautifully planned, established gardens that are packed with wow factor!
Well-loved and maintained throughout its time, this home is ready for a new generation to move in and make memories - we can't wait to show you through.
Council Rates currently $579.70 per quarter
_____________________
Marketing disclaimer: Whilst every care has been taken in collecting and producing the above information, no warranty is given or implied as to the accuracy. Prospective purchasers are required to take such actions as necessary to satisfy themselves in this respect.